• +877-739-9120

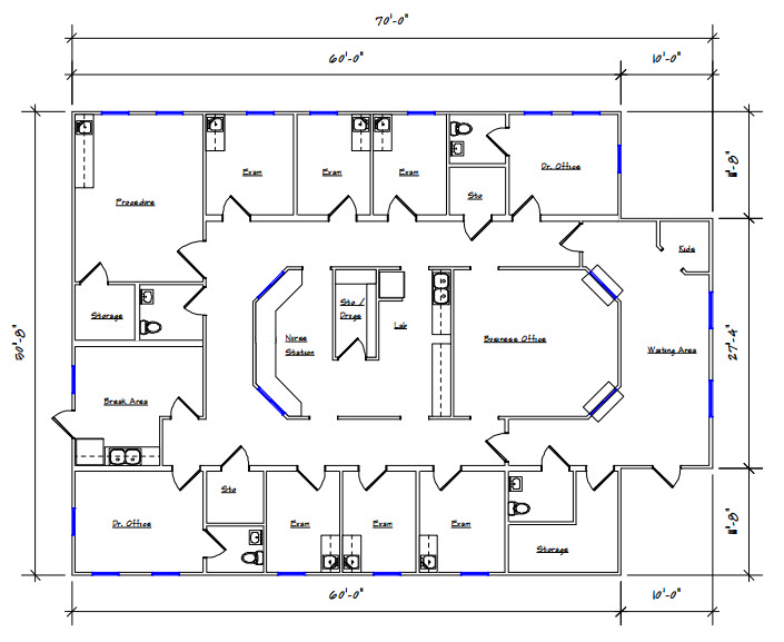
Healthcare Floor Plan 365-5070

Healthcare Floor Plan 365-5070

A floor plan of the building with many windows.

Post comment