• +877-739-9120

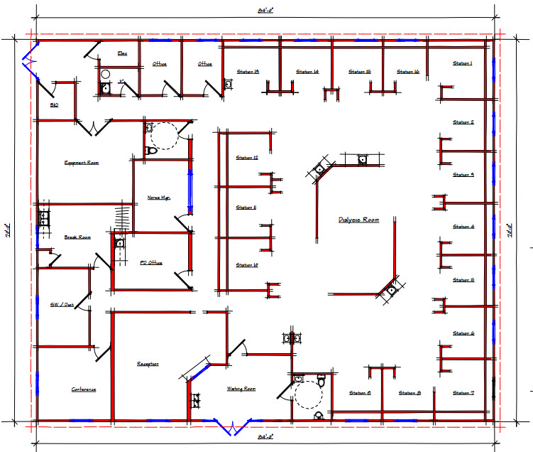
Healthcare Floor Plan 406-8470

Healthcare Floor Plan 406-8470

A floor plan of a building with many windows.

Post comment