• +877-739-9120

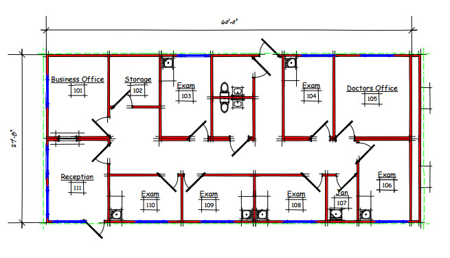
Healthcare Floor Plan 362-2860

Healthcare Floor Plan 362-2860

A floor plan of the building with many lines drawn around it.

Post comment